- Achat
- Sallanches
- Appartement
- Appartement T3 à vendre à Sallanches
Appartement T3 à vendre à Sallanches
292 500 €
à partir de /mois- 72 m²
- 3 pièces
- 2 chambres
- 1 salle de bain
Vous souhaitez visiter cet appartement ?
Vous avez une question sur cet appartement ?
Contacter l'agence 4807 Immobilier Sallanches :
Voir l'agence04.50.58.4807
158, Place Charles-Albert
74700
Sallanches
À propos de cet appartement
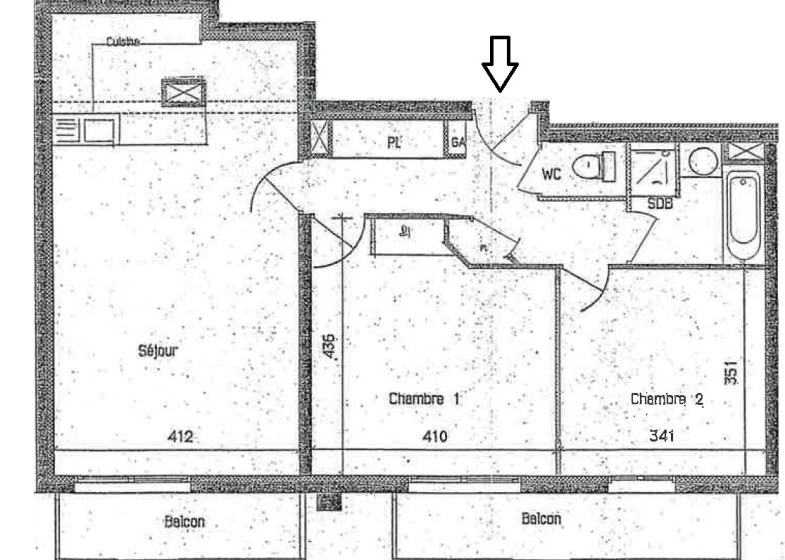
Le bien est composé d'une entrée avec placards, un vaste séjour de 30m2 avec cuisine ouverte donnant sur un balcon côté Est avec une vue magnifique sur le Mont-Blanc, 2 grandes chambres dont une avec balcon, une salle de bains avec baignoire et douche, et un wc séparé.
Une cave et un garage complètent le bien.
Les charges comprennent tous les frais afférents à la copropriété avec l'eau froide, l'eau chaude et le chauffage au gaz.
Copropriété de 2007 avec ascenseur et parking collectif, à deux pas du centre-ville.
A visiter au plus vite !
Les informations sur les risques auxquels ce bien est exposé sont disponibles sur le site Géorisques : www.georisques.gouv.fr
Plus d'informations sur cet appartement
- Surface : 72m²
- Chauffage : CENTRAL
- Type de chauffage : CHAUDIERE
- Mode de chauffage : GAZ
- Nb de pièces : 3
- Nb de chambres : 2
- Nb de salles de bain : 1
- Étage : 1
- Balcon : 1
- Cave : 1
- Parkings : 1
Les honoraires sont à charge du vendeur.
Bilan du diagnostic des performances énergétiques du bien
Estimation du coût annuel des énergies pour un usage standard entre 626 € et 846 € au 1 janv. 2021 (abonnement compris).
Localisation du bien
En savoir plus sur l'immobilier à SallanchesPour visualiser la carte, vous devez au préalable autoriser l'utilisation de cookies relatifs aux statistiques sur notre site.
ParamétrerAnnonces similaires
-
Appartement T4 à vendre à Annecy
Annecy
116 m²
Dans l’un des emplacements les plus prisés, face au lac et à seulement cinq minutes à pied du centre-ville, cet appartement de 117 m2 offre une qualit...
1 628 000 €
-
Exclusivité
Appartement T2 à vendre à Evian Les Bains
Evian Les Bains
40 m²
Appartement d’exception avec jardin et vue panoramique sur le Lac Léman Évian-les-Bains Niché au sein d’une résidence sécurisée de standing, dans le...
245 000 €
-
Exclusivité
Appartement T2 à vendre à Evian Les Bains
Evian Les Bains
40 m²
Dans une résidence de standing sécurisée et parfaitement entretenue, découvrez ce T2 de 40,75 m2 à l’agencement optimisé, offrant un cadre de vie priv...
267 750 €
-
Appartement T2 à vendre à La Roche Sur Foron
La Roche Sur Foron
50 m²
Idéalement situé au cœur du centre-ville, au 2ème étage d’une copropriété de standing, ce T2 vendu loué séduit dès l’entrée par son agencement optimal...
205 000 €
-
Appartement T3 à vendre à Annecy
Annecy
65 m²
À vendre, très bel appartement trois pièces de 65 m2 situé dans une résidence de standing livrée en 2022.Ce bien rare combine le confort de la vie urb...
479 000 €
-
Appartement T2 à vendre à Cluses
Cluses
57 m²
Sur la commune de Cluses, au sein d'une résidence de standing à proximité du centre-ville, venez découvrir cet agréable appartement T2 de 57,70 m2 si...
165 000 €
-
Exclusivité
Appartement T3 à vendre à Saint Pierre En Faucigny
Saint Pierre En Faucigny
78 m²
RARE A LA VENTE, BIEN D'EXCEPTION ! EN EXCLUSIVITÉ chez 4807 immobilier vous présente ce magnifique appartement T3 en attique d'une superficie de 78,0...
349 000 €
-
Exclusivité
Appartement T3 à vendre à Thyez
Thyez
71 m²
À vendre Appartement T3 à Thyez (74) Résidence récente de 2022 Découvrez ce charmant appartement T3, situé au 2ème étage avec ascenseur d’une copr...
280 000 €
-
Exclusivité
Appartement T3 à vendre à Thonon Les Bains
Thonon Les Bains
70 m²
À VENDRE Superbe T3 au dernier étage, Jardins de Ripaille Thonon-les-Bains Dans un secteur très recherché de Thonon-les-Bains, à deux pas du châte...
250 000 €
-
Exclusivité
Appartement T4 à vendre à Saint Julien En Genevois
Saint Julien En Genevois
80 m²
Découvrez cet appartement T4 de 80 m2, offrant un espace de vie généreux et une jolie terrasse de 10 m2. Construit en 2007, ce bien comprend : Un salo...
435 000 €
-
Exclusivité
Appartement T3 à vendre à Cluses
Cluses
71 m²
Sur la commune de Cluses, secteur centre-ville, à proximité directe des écoles et commerces, appartement T3 traversant d'une surface de 71,17 m2 situé...
170 000 €
-
Exclusivité
Appartement T2 à vendre à Thyez
Thyez
45 m²
EN EXCLUSIVITE 4807 IMMOBILIER - INVESTISSEMENT LOCATIF - Appartement T2 situé sur la commune de Thyez, comprenant : une entrée, un séjour avec accès...
120 000 €
-
Exclusivité
Appartement T2 à vendre à Saint Julien En Genevois
Saint Julien En Genevois
51 m²
En hyper centre, cet appartement de 51 m2 avec cave et garage offre un cadre de vie agréable et proche de toutes les commodités. Il se compose d'une p...
245 000 €
-
Appartement T4 à vendre à Annecy
Annecy
125 m²
Dans une résidence de standing, superbe appartement occupant la totalité du dernier étage, offrant 125m2 au sol avec des prestations hors norme. Aucun...
997 500 €
-
Exclusivité
Appartement T1 à vendre à Annemasse
Annemasse
18 m²
ANNEMASSE - Spécial investissement locatif par bail commercial - Studio d'environ 18 m2 avec terrasse dans une résidence étudiante en centre-ville et...
89 000 €
-
Appartement T2 à vendre à Thonon Les Bains
Thonon Les Bains
41 m²
Coup de cœur assuré pour ce joli T2 avec balcon ! Au sein d'une résidence récente et de standing, idéalement située à deux pas des commerces et de la...
230 000 €
-
Appartement T3 à vendre à Annecy
Annecy
72 m²
Au sein d’une résidence de standing, à deux pas du centre-ville, découvrez ce superbe appartement de type 3 entièrement rénové par des artisans renomm...
878 000 €
-
Exclusivité
Appartement T2 à vendre à Viry
Viry
47 m²
Situé sur la commune recherchée de Viry, cet appartement aux volumes généreux se trouve au 2eme étage (conforme aux normes d’accessibilité). Construit...
260 000 €
-
Exclusivité
Appartement T1 à vendre à Bernex
Bernex
18 m²
Studio à vendre BERNEX dans une copropriété bien entretenue à 2 pas de la station de ski. Ce studio est composé d'une cuisine aménagée et équipée ouve...
89 000 €
-
Appartement T3 à vendre à Sevrier
Sevrier
92 m²
Dans le village prisé de Sévrier, au bord du lac d'Annecy, appartement duplex de type 3, niché dans une copropriété intimiste qui garantit calme et sé...
475 000 €










